別再嫌它舊!30 坪以下老屋翻新神改造,重點翻新與IKEA家具應用,預算內讓住宅價值瞬間翻倍

從2023年八月政府推出的新青安貸款方案,導致預售屋購買率暴增,到今年熱潮退缺,老屋房市逐漸上升,許多購屋族轉為選擇單坪價格較低的中古屋與老屋。老屋翻新在裝修工程與費用上,和新成屋有許多差異,在基礎工程中,老屋通常會需要水電管線翻新、根除漏水壁癌等問題,另一方面,老房子的格局通常會有比較大幅度的變動,拆除隔間、清運與重建等等工程。在新手屋主不清楚裝修細節與預算的狀況下,本篇採訪好和設計何佳翰總監經手的兩間老屋改造案例,彙整3大問題以專業角度分析評估是否需要更換管線,改造計畫中如何解決老屋與中古屋常見問題,以及透過實際案例了解改造前後的效果,發揮老屋的坪數優勢,重新找回老屋市場上的競爭力!
Q1.老屋裝修要注意哪些事情?
依照水電管線的口徑大小、是否有焦化狀態決定是否更換
►漏水壁癌問題一定要徹底根除
►調閱原始平面圖了解增建規範
►隔間拆除與微調創造更好的室內格局
►陽台空間的運用與採光最大化
Q2.老屋在裝修上與新成屋最大的區別為何?以及屋主的預算該如何分配?
老屋和新成屋最大的差異在於「基礎工程」、「裝修費用」和「工程時間」。老屋和中古屋幾乎需要在基礎裝潢中做全面更新或補強,包括水電管線重拉、防水層更新、泥作隔間變動、牆面壁癌處理等等,在管線更換時也要特別注意水壓、排水性的流暢以及 72 小時的防水測試。另外,老房子的隔間方式容易造成坪數浪費、產生窄長廊道,許多老房子為長形屋,也會容易有採光不足的問題,因此常因為屋主居住需求變動廳房格局,或是微調隔間牆以發揮更好的坪效。
另外,許多 30 坪以下的老屋都只有規劃一間衛浴,因此會碰到需要將衛浴一分為二的狀況,或者是有增建的需求。前者在水區範圍內的劃分比較簡單,增建衛浴則需要先去政府單位調閱原始圖面,申請核准之後才能增建;增建也只能在舊的水區範圍內,還要注意洩水坡度是否能夠順利流入排水孔或主幹管,避免積水。
Q3.如何辨別老屋是否需要翻新管線?
老屋是否需要充拉電線,最主要是在老房子的電線直徑(線徑)與現代新成屋的電線直徑存的差異,因為線徑直接影響電線的載流量(能承載的電流大小)和用電安全。早期老屋與中古屋迴路線徑約為1.2 mm 或 1.6 mm,乘載的安倍數較低,無法負荷如電磁爐、微波爐、電子鍋等高功率的家電。而近10~15年的房子線徑多為2.0 mm 或 3.5 mm,甚至針對高功率電器預留專用迴路,並使用粗線徑(銅線5.5mm²以上),可安全支撐大電流,避免電線發熱或燒熔。
因此設計師在評估中古屋和老屋是否需要更換管線的標準如下:
.電線線徑粗細,太細的線徑無法承載高功率家電
.銅線有無氧化或焦黑,插座開關發熱顯示電流過載
.用電時容易跳電或燈光閃爍,多屬「線徑過細/共線過多」造成電壓不穩
.線皮顏色變暗、變黃、粉化,表示電線已經老化不堪使用
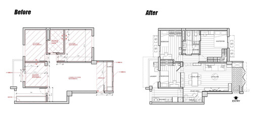
Project01.微調隔間創造高效三房與1.5衛浴,融入IKEA家具在風格與預算找到最佳平衡

24坪 / 三房兩廳1.5衛 / 現代風 / 親子宅
這間24坪高齡老屋原始格局為三房一衛配置,但由於接手的屋主一家四口,希望主臥能擁有專屬衛浴,且兩間小孩房希望儘可能做到等比,因此好和設計團隊將重點裝修預算放在將原始衛浴空間一分為二,並透過微調隔間牆讓兩間小孩房接近對稱狀態。客廳空間也將原本的開放式書房升級,變成夫妻兩可以同時使用的辦公空間;玄關也強化防水、加裝雨遮洩水,並透過分區收納活化玄關長廊的利用度。

平面圖提供 好和設計
落塵區改造重點
本案的落塵區改造後擺脫全開放式設計,考量到居者隱私,在進門左側規劃鞋櫃將收納與屏風概念結合,門片鏤空增加鞋履通風。結構上僅執行了輕度更動,將室外廊台略微延伸,並在不違背法規的前提下,為外部遮雨棚創造出微妙的高度落差,同時維持了地面的既有層次,以利雨水導流,並保護外牆不受潮。地板挑選花磚鋪陳,帶有風格也容易清潔。廊道底端的漂浮式櫃組,以其懸空的設計,視覺上減輕了頂天立地的厚重感,而內嵌的定製規格能妥善藏匿旅行箱等巨型物品。

客廳改造重點
電視櫃體採用懸浮式的輕盈結構,在細節上做了微小的弧角處理,營造出仿佛漂浮於壁面上的視覺感受;櫃身邊緣的弧形倒角修飾,則進一步柔化了立面的硬朗線條,達成虛實相應的設計效果。電視牆的木格柵既是裝飾,也可用來修飾配電箱,淺木搭配鼠尾淡綠色油漆,營造出和諧且溫馨的氛圍。


書房改造重點
考量到屋主夫妻兩人皆有在家工作的需求,原先開放的書房區域被重新劃定,書桌沿著牆面精心配置,設計上採轉角佈局,為任職於科技領域的男主人設置了L型工作檯面,同時也為女主人預留了使用筆記型電腦的專屬位置。設計師更運用了連續的圓弧語彙來整合視覺:從客廳延伸至餐廳,再至衛浴入口處,均可見到由輕薄金屬層板打造的櫃體線條,確保空間的連貫性與流暢感。而在衛浴區的外側,則以鐵件格柵架取代了原有的實體隔間,作為輕盈的遮擋物,進一步呼應了整體的現代簡約風格。


餐廚改造重點
將原有的和室格局徹底轉化為實用的餐飲區域,利用樑柱產生的空間規劃整合性的電器與備餐收納櫃,不僅能妥善安置小烤箱等各式電器,同時亦兼顧了物品的儲存與陳列展示機能。廚房空間選擇維持封閉式設計,以一道摺疊拉門作為劃分界線,有效阻隔了烹飪時的油煙散逸,同時藉由摺疊特性,避免了傳統推拉門可能造成的走道空間壓縮。



主臥改造重點
老屋改造最大的困難點是在預算內做完善空間機能與兼顧風格,好和設計著重在基礎工程與格局的優化,在臥室家具配置上,展現了高效率的預算整合巧思,床尾的衣物儲物區巧妙地結合了IKEA衣櫃與系統板材的封頂處理,透過精確的色彩與材質調和,外觀呈現出猶如訂製家具質感,為屋主在理想的成本效益中創造了最大的價值。化妝台選擇用木作手法,可以與床頭櫃完美結合;床頭鑲嵌燈帶照明,輔以天花板嵌燈和可調式床頭燈,多種光源配置的概念,更可以依照生活情境劇做變化。


小孩房改造重點
透過隔間牆的微幅調整,讓原本大小不均的兩間客房調整為接近1:1的空間比例,房間內大量運用了IKEA的標準櫃體作為基礎,搭配少量系統櫃進行細節點綴和收邊;在規劃圖面階段,即同步完成了家具的選購定案,確保所有組件能完美配合,最終在不超支的情況下,呈現出具有設計感的外觀。兩間臥室的床尾透過S型櫃體設計創造雙面應用,用櫃體取代牆體的設計手法,降低隔間施作成本與工時,同時也滿足了床尾的衣物儲物需求。


衛浴改造重點
設計師基於對日常使用便利性的深度考量,對原有的單一衛浴空間進行了創新性的分割,將其擴展為1.5 間衛浴的複合配置。主衛浴機將洗手台等水區功能規劃於靠外側的前段公共區域。淋浴間則利用凹槽設計,在有限的坪數內實現了完整的三分離式設計,大幅減少了家庭成員間相互等待使用的窘境。


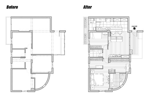
Project02.26坪老屋破格設計!活動門建構頂客族夫妻個性生活空間

26坪 / 兩房兩廳一衛 / 北歐風 / 頂客族夫妻
這間高齡四十年的老屋為台灣常見的傳統長型屋,除此之外老屋位於建築邊間,因此還有難以規劃的圓弧外牆。好和設計何佳翰總監針對 26 坪老屋做了基礎工程與格局上的重新梳理,公領域採取破格設計,透過兩道活動門創造出靈活台性的餐廚空間。由於是頂客族夫妻兩人居住,因此除了浴室外,房間都不做房門,僅以拱門設計創造出空間景深,將格局微調、並活用過小的空間分別規劃男女主人各自的獨立更衣間。規劃於弧形外牆那側的主衛浴,利用地鐵磚鋪序讓原本建築劣勢化為設計特色,建構頂客族夫妻個性生活空間。

平面圖提供 好和設計
落塵區改造重點
一入門,寬敞的玄關空間便享有老屋獨特的L型採光窗帶來的優越自然光;設計師在女兒牆面打造了高低錯落的置物平台,不僅便於屋主擺放大型落地盆景和小型植栽,平台下方更隱藏了實用的收納空間,專供放置燈泡、修繕工具等家庭備品。為了解決房屋的西曬困擾並提升能源效率,特別在落塵區與客廳之間設置了一道通透的玻璃拉門,既能維持玄關區域的良好採光,同時也是阻隔午後熱能的有效屏障,大幅提升了冷房效果並有效降低冷氣耗能。

客廳改造重點
主牆設計融合櫃體與電視牆,以近乎一比一的比例,透過木作的弧形順接處理消弭了生硬稜角,優化了整體視覺流暢感。薄型鐵件打造層板作為電視櫃,搭配下方深灰色石材座檯提升質感;連接的櫃體以圓弧創造流暢的設計語彙,下方電視機櫃則透過百葉格柵設計增添通風。天花板採用了獨特的設計手法,以低天花搭配裸露的軌道燈,在視覺上巧妙延伸了空間高度。色彩上選擇以灰色藝術塗料鋪敘客廳電視牆與其他立面,並因應屋主夫妻的奈良美智藝術收藏,預埋掛畫軌道讓女屋主珍藏的奈良美智畫作成為空間中的藝術亮點與獨特識別。


餐廚改造重點
為了符合頂客族夫妻嚮往的生活模式,設計師徹底改造了原先內縮封閉的廚房格局,重新調整流理臺位置並大幅加長,延伸出兼具用餐功能的中島吧台,而在其對側則規劃了備餐檯與電器櫃,成功將原本狹小的單線廚房升級為順暢的雙一字型動線。一字型中島採用特別訂製的人造石檯面拼接而成,以大尺度的平面化設計,完美銜接料理與用餐區域,同時也呼應了頂客族夫妻的簡約個性。用餐吧台與料理中島結合外,中島與客廳之間還訂製了一道玻璃折疊拉門,下廚時能有效阻絕油煙,折疊門收闔後能和客廳共組成一個彈性交誼空間,滿足夫妻倆平日使用、招待親友的生活需求。折疊門的寬度透過精心計算,與沙發旁的電信櫃深度相同,當折疊門收折起來時能與電信櫃齊平,展現了設計的整體性與細膩。



客房改造重點
改造大幅調整了長型老屋的空間比例,透過將原本的三個獨立空間整合,讓主臥擁有夫妻各自獨立的更衣間;私領域內運用圓拱門廊設計取代傳統門片,不僅有效弱化了空間切割線可能帶來的零碎感,更藉由優美的拱形線條創造出視覺景深,增添了進入各個機能區域的儀式感。較大的一房改為女主人的獨立更衣間,結合衣物收納、梳妝台與儲藏室功能,門廊旁貼心設置了污衣櫃,可用於收納穿過但無需立即清洗的外套或包包,下方還能放置行李箱。更衣室並沒有採用傳統系統櫃,而是運用層板與吊架的組合,提供了高度靈活且彈性的收納機能;下方的鏤空處搭配了小冰柱玻璃,讓光線得以穿透,既減輕了空間的封閉感,也讓身處不同區域的屋主能隱約感知彼此身影,增添了有趣的互動性;較小的空間則改造為男主人的獨立更衣間,同樣以彈性的吊掛與層板設計滿足日常收納需求。




主臥改造重點
主臥室調整後空間更加寬敞,設計師為了弱化內部機能區隔可能帶來的雜亂感,特別在通往衛浴、更衣間和梳妝區的入口以及天花板邊緣,都透過柔和的弧形倒角創造更流暢的視覺體驗。床頭設計跳脫傳統的突出式床頭板概念,改採內凹式設計,建構出簡約且具備包覆感的視覺效果;淺色木作貼皮與水泥漆
冷暖材質的搭配能在平面上創造風格與層次,亦賦予寢居空間寧靜的睡眠氛圍。考量到隱私與採光需求,床尾的電視牆兩側採取鏤空設計,並鑲嵌了小冰柱玻璃,在確保衛浴和如廁區域隱私不被影響的前提下,同時有效地增加了主臥內部的透光率。



浴室改造重點
位於建築弧形區域的主衛浴空間,在空間規劃上難度甚高,主臥入口需穿越女主人獨立更衣間內,因此擁有良好的多面採光;衛浴內弧形牆面重新鋪貼上具有造型感的墨綠色鐵道磚,透過連續的排列創造出衛浴內富有設計感的視覺主牆。洗手台與馬桶位置避開鏤空的小冰柱玻璃,維持採光的流通與使用浴廁時的隱私;左側則以玻璃帷幕劃分出獨立的淋浴間,實現了舒適的乾濕分離設計。為了不浪費淋浴間旁通風窗戶的空間,淋浴間外側特別訂製水磨石壁龕收納區,上層平台可用來放置浴袍或換洗衣物,下方則能收納衛生紙等備品,大幅提升了空間的實用性,使原本陳舊狹小的衛浴徹底轉變為具備高機能性與設計感的乾濕分離場域。



Designer Data
好和設計
主持設計師:何佳翰
Email:goodhostudio@gmail.com
網址:www.goodhodesign.com/goodho-home-page/welcome
電話:0960181064、02-87928330
地址:台北市內湖區民權東路六段123巷14號4樓之2
- 記者:設計家Searchome
- 更多房產新聞 »
